Kepahiang – Bengkulu Post.Id –Guna memperlancarkan dalam berkomunikasi yang nyaman, sejuk dan memiliki gedung berkomunikasi Refresentatif, Pemda Kepahiang segera membangun gedung Vicon termasuk didalamnya ada ruang konferensi pers, vidio konfrens serta ruang media center dibangun di area kantin Pemda Kepahiang demikian disampaikan Sekda, Rabu (17/5/2023).
Diketahui selama ini, Jika instansi akan melakukan zoom metting atau kegiatan Kepala Daerah selalu menggunakan ruang Bupati dan OPD ingin melaksanakan zoom harus ke di Dinas Kominfopersantik, Untuk mempermudah bagi OPD, Kepala Daerah melakukan zoom video konfrens wadahnya lebih nyaman dan refresentatif.

Dr. Hartono, M.Pd Sekda Kepahiang mengatakan ” Dari tahun sebelumnya kita sudah memikirkan seyogyanya Pemda Kepahiang harus memiliki wadah yang refresentatif dalam melakukan kegiatan yang saat ini sering menggunakan media video konfrens, Setelah menyampaikan kepada atasan lanjutnya” Beliau setuju dibangun gedung Vicon diarea kantin Pemda,” ujarnya.
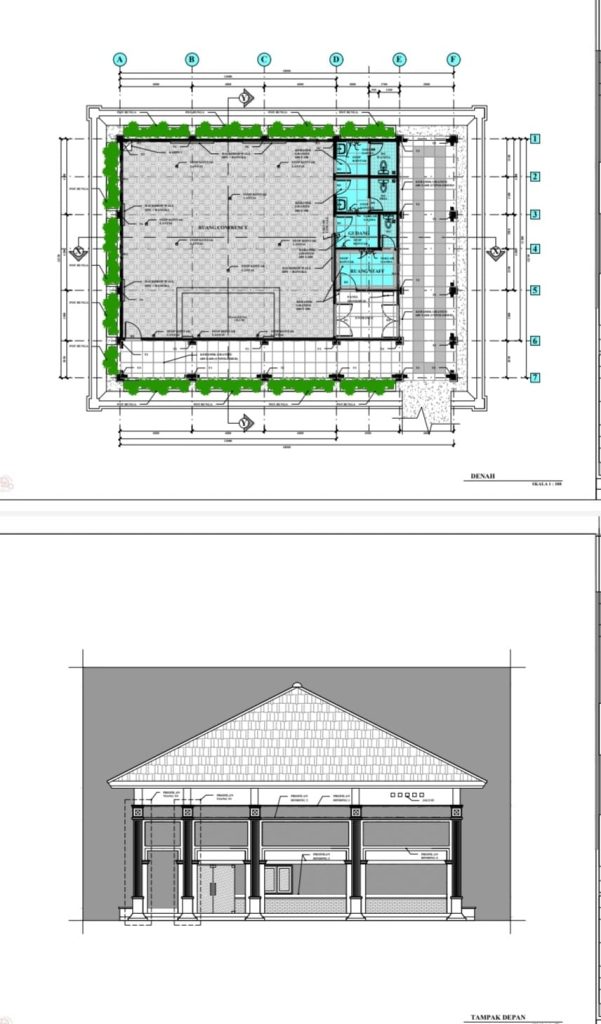
Rencana pembangunan gedung Vicon sambung Hartono ” Titik lokasi pembangunan gedung di area Kantin dan saat ini sedang tahap proses tender/lelang oleh Dinas PUPR, Jika sudah selesai gedung tersebut seluruh OPD dapat mempergunakan dalam giat meeting zoom, Selain itu tambah Sekda ” Gedung vikon akan memiliki ruang konferensi pers, video konfrens juga ada ruang media center termasuk disamping gedung akan dibangun kantin,” pungkasnya.
Sekda berharap siapapun yang akan membangun gedung vikon kelaknya bekerjalah sesuai perencanaan, RAB dan utamakan kerapian serta kokohnya gedung tersebut.(stv).

